Active

Listing Tools

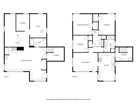
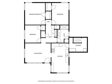
Great views of Lake Superior from this home in Beaver Bay! Beautiful 3.2 acre lot with apple trees, raspberry bushes and a spacious yard to enjoy... Walk in to the living room with plenty of natural sunlight and panoramic views, the vintage kitchen and dining area also face the lake! 3 bedrooms and 1 bath on the upper floor. The basement has lots of potential for your finishing touches. The Gitchi Gami bike trail is right across the highway, Split Rock State Park and Tettegouche State Park are within 10 minutes as well as other trail access nearby. This home is not eligible for a short term rental permit at this time.

Property Details of 1041 Main Street

Property Details

Interior Features

Utilities and Appliances

Map Location

Driving Directions

Listed by Gigi Maxwell of Legacy Real Estate Group LLC (***)

Listings courtesy of Lake Superior Area REALTORS as distributed by MLS GRID. Based on information submitted to the MLS GRID as of November 9, 2025 7:08 AM EST. All data is obtained from various sources and may not have been verified by broker or MLS GRID. Supplied Open House Information is subject to change without notice. All information should be independently reviewed and verified for accuracy. Properties may or may not be listed by the office/agent presenting the information. IDX information is provided exclusively for consumers’ personal noncommercial use and may not be used for any purpose other than to identify prospective properties consumers may be interested in purchasing. The data is deemed reliable but is not guaranteed by MLS GRID. The use of the MLS GRID Data may be subject to an end user license agreement.

 
 

 

 

Hi there! How can we help you?

Contact us using the form below or give us a call.

Send Us A Message:

I agree to receive marketing and customer service calls and text messages from CENTURY 21 Atwood. To opt out, you can reply 'stop' at any time or click the unsubscribe link in the emails. Consent is not a condition of purchase. Msg/data rates may apply. Msg frequency varies. Privacy Policy.

Do not fill in this field:

This site is protected by reCAPTCHA and the Google Privacy Policy and Terms of Service apply.

Hi there! How can we help you?

Contact us using the form below or give us a call.

Send Us A Message:

Do not fill in this field:

This site is protected by reCAPTCHA and the Google Privacy Policy and Terms of Service apply.

Hi there! How can we help you?

Contact us using the form below or give us a call.

Send Us A Message:

Do not fill in this field:

This site is protected by reCAPTCHA and the Google Privacy Policy and Terms of Service apply.

Do not fill in this field:

This site is protected by reCAPTCHA and the Google Privacy Policy and Terms of Service apply.

Do not fill in this field:

This site is protected by reCAPTCHA and the Google Privacy Policy and Terms of Service apply.

Do not fill in this field:

This site is protected by reCAPTCHA and the Google Privacy Policy and Terms of Service apply.

$

Do not fill in this field:

This site is protected by reCAPTCHA and the Google Privacy Policy and Terms of Service apply.